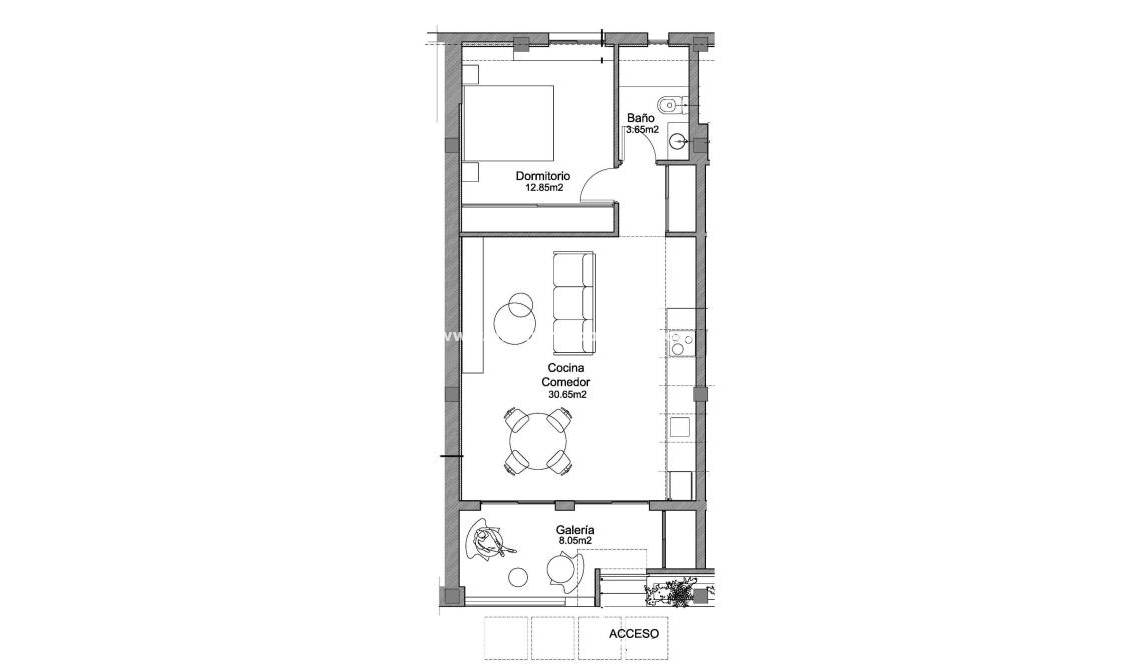
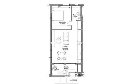
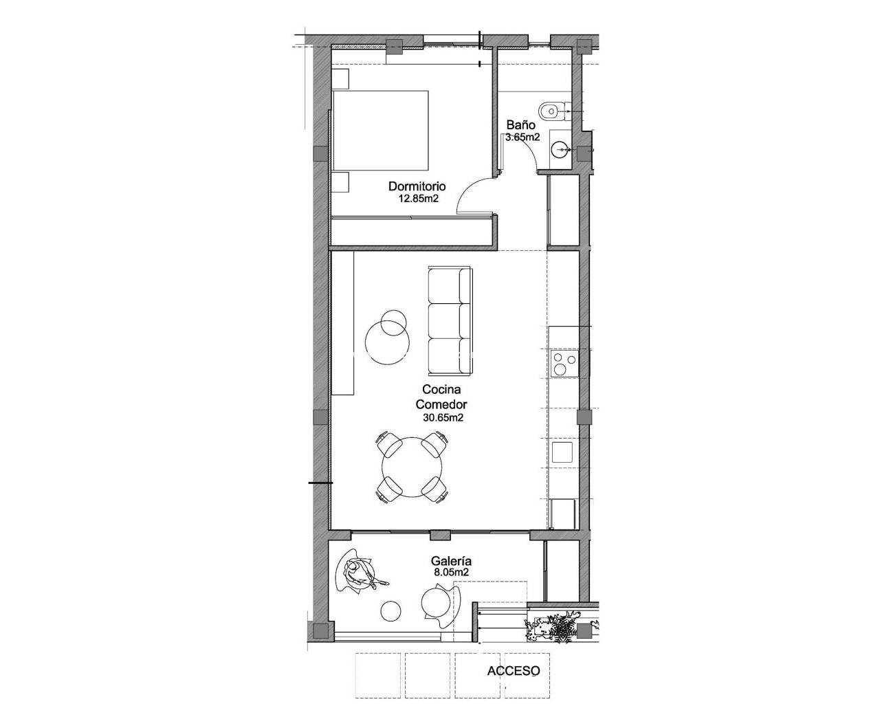
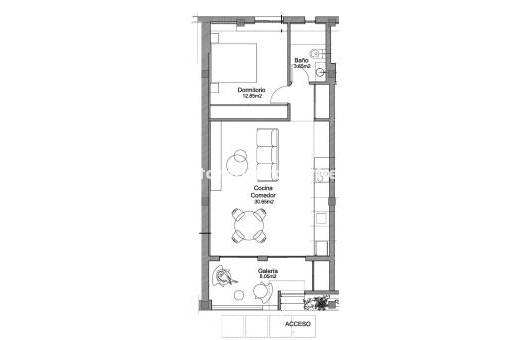
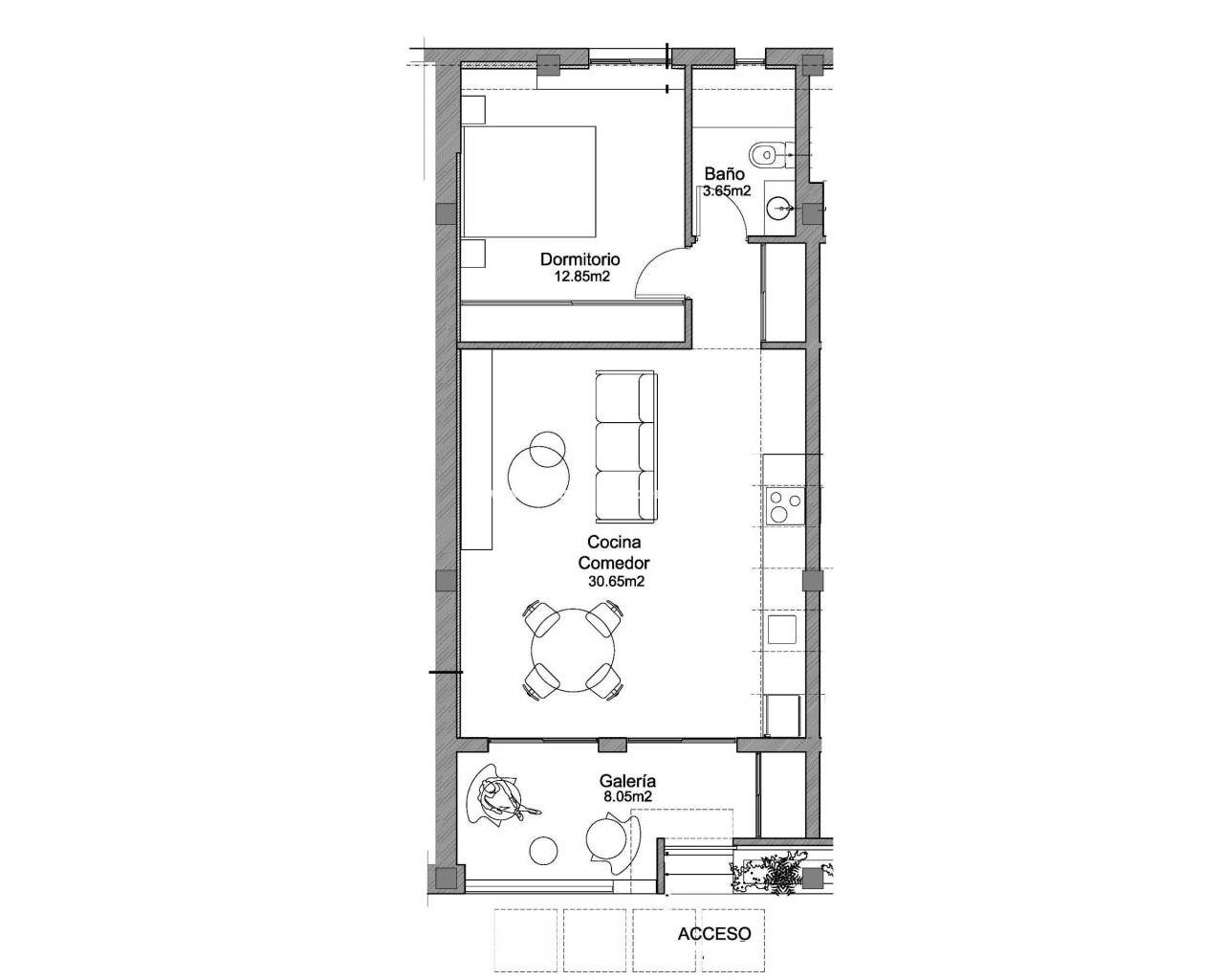
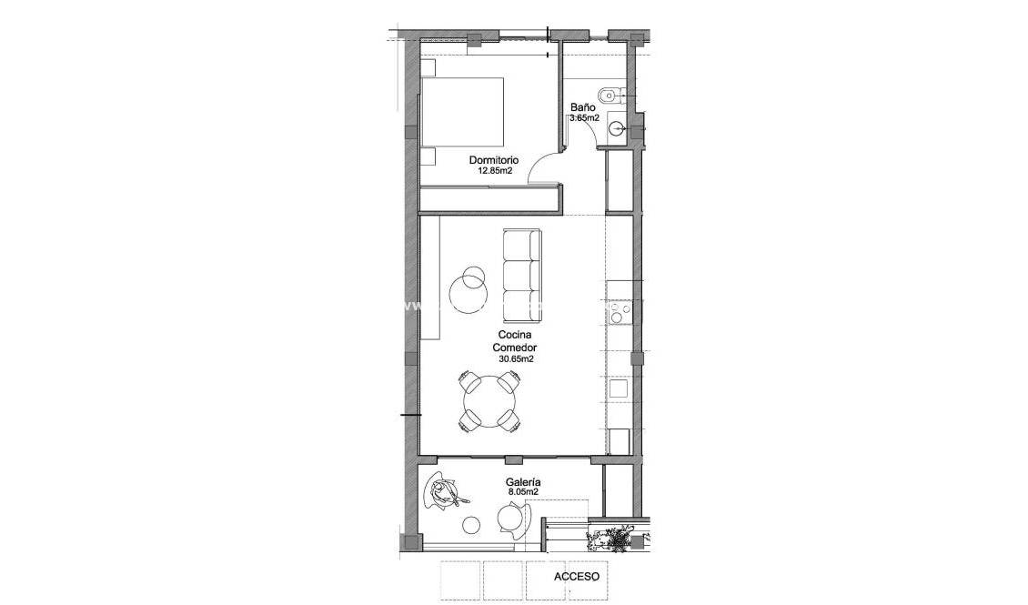
Moderne Neubauwohnungen nur 150 m vom Meer entfernt in Torrevieja Exklusive Boutique-Wohnanlage am Strand Diese neue Wohnanlage umfasst nur 3 moderne Apartments in privilegierter Lage, nur 150 Meter vom Strand Los Náufragos in Torrevieja entfernt. Ursprünglich Teil einer 1989 erbauten Gewerbefläche, wurde die Immobilie komplett renoviert und in stilvolle Wohnungen mit einem Schlafzimmer und einem Badezimmer umgewandelt, die für modernes Wohnen an der Küste konzipiert sind. Zeitgemäßes Design und bezugsfertiger Komfort Jede Wohnung wurde komplett mit hochwertigen Oberflächen renoviert und wird voll möbliert und ausgestattet übergeben. Zur Ausstattung gehören: Offene Küche mit Möbeln und Geräten Designermöbel, Beleuchtung, Vorhänge, Fernseher und Dekoration Klimaanlage mit Heiz- und Kühlfunktion im Wohn- und Schlafzimmer Badezimmer mit Möbeln, Spiegel und Duschwand Vordere Terrasse mit Platz für Tisch und Stühle Diese schlüsselfertige Lösung sorgt dafür, dass Sie Ihr neues Zuhause genießen können, ohne sich um die Einrichtung oder Ausstattung kümmern zu müssen. Die Übergabe ist für Februar 2026 geplant, sobald die Lizenzen und Versorgungsanschlüsse fertiggestellt sind, sodass Sie fast sofort einziehen können. Erstklassige zentrale Lage in Torrevieja Nur wenige Gehminuten vom Meer und 10 Minuten vom Stadtzentrum entfernt, genießen diese Apartments eine unschlagbare Lage. Im Umkreis von 300 Metern finden Sie Restaurants, Supermärkte, Apotheken, Banken und öffentliche Verkehrsmittel. Der Yachthafen von Torrevieja ist nur 1 km entfernt, und wichtige Einrichtungen wie das Hospital de Torrevieja und das Einkaufszentrum Las Habaneras sind leicht zu erreichen. Gute Anbindung an wichtige Ziele Strand von Los Náufragos: 150 m Yachthafen von Torrevieja: 1 km Golfplatz Villamartín: 10 km Flughafen Alicante: 45 km Ein Lebensstil am Mittelmeer Torrevieja ist eines der begehrtesten Reiseziele an der Costa Blanca und bekannt für seine Sandstrände, seine lebhafte Promenade und sein ausgezeichnetes Klima mit mehr als 300 Sonnentagen im Jahr. Ob Sie einen dauerhaften Wohnsitz, ein Ferienhaus oder eine Investition suchen, diese Boutique-Anlage bietet die perfekte Balance zwischen Komfort, Stil und Lage. Sichern Sie sich noch heute Ihre Wohnung an der Küste Erleben Sie modernes Wohnen nur wenige Schritte vom Meer entfernt. Kontaktieren Sie uns jetzt, um einen Besichtigungstermin zu vereinbaren und Ihr neues Zuhause in Torrevieja zu reservieren, bevor es zu spät ist.