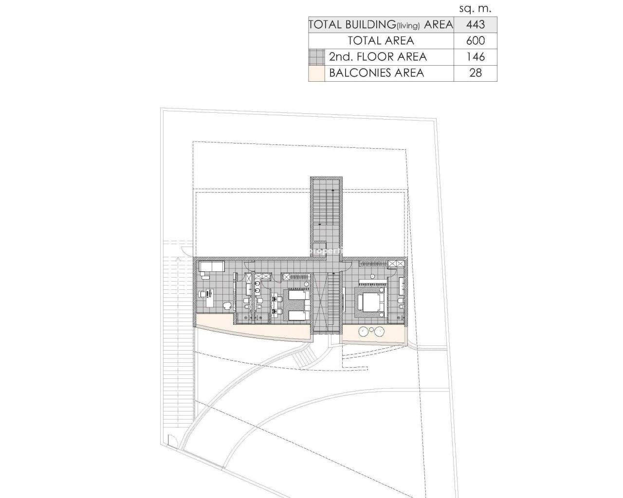
Moderne luxe villa met panoramisch uitzicht op zee in Altea Hills, Noord-Costa Blanca Exclusieve moderne villa in de prestigieuze woonwijk Altea Hills Deze uitzonderlijke moderne villa is gelegen in de prestigieuze gated community van Altea Hills, een van de meest gewilde woonwijken aan de Costa Blanca. Gelegen op een verhoogd perceel biedt het pand een adembenemend panoramisch uitzicht op de Middellandse Zee en de omliggende bergen, terwijl het de hele dag door volledige privacy, rust en een uitstekende zonligging biedt. Ontworpen met moderne architectuur en strakke lijnen, integreert de villa naadloos de binnen- en buitenruimtes. Grote ramen van vloer tot plafond laten overvloedig natuurlijk licht binnenstromen, terwijl het prachtige uitzicht op zee en de directe toegang tot de terrassen en buitenruimtes optimaal worden benut. Ruime open woonruimte met hoogwaardig design De villa is verdeeld over drie verdiepingen die met elkaar verbonden zijn door een privélift, wat zorgt voor maximaal comfort en toegankelijkheid. De belangrijkste leefruimte is een lichte open ruimte waar de woonkamer, eethoek en designkeuken op natuurlijke wijze in elkaar overvloeien. De moderne keuken is voorzien van Italiaanse kasten en Siemens-apparatuur, wat een stijlvolle en functionele omgeving creëert die ideaal is voor zowel het dagelijks leven als het ontvangen van gasten. De grote ramen zorgen voor een naadloze verbinding met de buitenterrassen, waardoor optimaal geprofiteerd wordt van de mediterrane levensstijl. Vier elegante slaapkamersuites met uitzicht op zee De woning beschikt over vier ruime slaapkamers met eigen badkamers, elk ontworpen als een privé-toevluchtsoord met hoogwaardige afwerking en directe toegang tot de terrassen. De master suite valt op door de inloopkast en de luxueuze badkamer met een vrijstaand bad met uitzicht op zee, wat een werkelijk ontspannende sfeer creëert, geïnspireerd door luxe spa-omgevingen. Extra voorzieningen zijn ondervloerverwarming, volledig geïnstalleerde airconditioning met luchtkanalen, een open haard, zonnepanelen voor energie-efficiëntie, een wasruimte, opslagruimte en een Italiaans meubelpakket. Premium buitenleven met infinity pool en entertainmentruimtes De buitenkant van de villa is zorgvuldig ontworpen om comfort en plezier te maximaliseren. Een spectaculaire infinity pool versmelt visueel met de horizon, terwijl de aangelegde tuinen, chill-out zones en eetterrassen de perfecte setting bieden voor cocktails bij zonsondergang of diners in de buitenlucht. De woning beschikt ook over ruimte voor een privé-fitnessruimte, een ultramoderne thuisbioscoop en een privégarage, waarmee dit exclusieve lifestyle-aanbod compleet is. Toplocatie aan de Costa Blanca Altea Hills is een beveiligde woonwijk die bekend staat om zijn luxe villa's, privacy en spectaculaire uitzicht op zee. Het charmante stadje Altea, beroemd om zijn historische oude binnenstad, witte huizen en kerk met blauwe koepel, ligt op slechts 6 km afstand en biedt een ruime keuze aan restaurants, boetiekjes en culturele bezienswaardigheden. Afstanden tot belangrijke bezienswaardigheden zijn onder andere de internationale luchthaven van Alicante op 70 km, de luchthaven van Valencia op 140 km, de Altea Club de Golf op 5 km, de jachthaven Marina Greenwich op 4 km en de stranden van Altea en Calpe op 3 tot 10 km. Dit unieke pand combineert eigentijdse architectuur, een bevoorrechte locatie en een uitzonderlijke mediterrane levensstijl. Neem vandaag nog contact met ons op voor meer informatie of om een privébezichtiging van deze buitengewone villa te regelen. 921